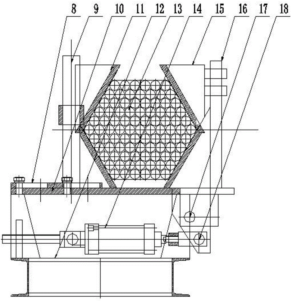
無縫鋼管|焊接鋼管的鋼管 可以在鋼管生產車間直接打包,一般是打包成六角包。

鋼管打包 方形包/矩形包
目前,國內的鋼管打捆包裝主要還是采用人工方式。鋼管捆的成型沒有在專門的成型機構中完成,鋼管捆的外形不能得到保證。這就很容易使捆扎鋼管捆的各道包裝帶受力不均勻,導致包裝帶的破壞,甚至造成鋼管捆的散捆;不能適應于惡劣環境下的鋼管包裝,例如高溫的線管、管線管的打捆包裝;鋼管捆打捆各過程都需要手工完成,自動化水平較低,不能滿足現代化鋼管企業生產的需要。

目前在美國、日本、德國、意大利已經形成了獨立完整的鋼管打捆機體系,且具有自主的產品。例如德國的西馬特鋼管打捆機,整體機械結構包括步進移管機構、水平移管機構、托叉移動機構、六角成型機構,其機械傳動米取鏈傳動的方式。這種承托式鏈條輸送裝置具有承載能力較大、具有一定的緩沖和抗振性能、傳動效率高、輸送能力大等優點,但是同時具有自重大、結構復雜、有一定的噪音、鏈條磨損維護成本高、不適合場地變化等缺點。


鋼管自動打包生產線
鋼管自動打包機在很多工廠中都有使用的到,它的主要作用就是將產品打包。自動打包機大致分為兩種,一種是鋼管自動打包機,另外一種是普通打包機。那么鋼管自動打包機與普通打包機相比,兩者之間有什么區別呢?
全自動鋼管打捆機是一種針對鋼管打捆及包裝的專用機械,它不同于其它普通的打捆設備。由于鋼管捆具有重量大(國家標準為5噸/捆)、長度長(國家標準為6~15米)等特點,因此鋼管打捆機必須滿足捆扎材料強度高,捆扎力大,捆扎牢固可靠的要求。國外的鋼材打捆機,經過幾十年的技術積累和不斷發展,已形成多品種、專業化、系列化生產,自動化程度不斷提高,捆扎速度不斷加快,可靠性和使用壽命也不斷提高。國際上比較知名的鋼材打捆機生產商主要有:美國sIGNODE(信諾)公司、瑞典SUND BIRSTA(森德斯)公司、德國TITAN公司等。然而我國目前所能生產制造的打捆機多為應用于輕工、服務行業的手動、半自動和全自動打捆包裝設備,且只是一些通用型的捆扎機械。高水平高效率的全自動鋼材打捆機,如應用鋼帶的全自動打捆機的生產至今仍是一個空白,無法滿足鋼鐵冶金產品包裝的需求。
一、工作原理
鋼管自動打包機的工作原理和普通打包機的工作原理是不同的。因為一種需要人員手工操作,另外一種則不需要。因此,也正是因為這一點區別,所以在很多工廠中都會選擇使用鋼管自動打包機。

二、工作效率
鋼管自動打包機的因為采用的是自動打包,所以工作效率都比普通的打包機工作效率高。
三、價格
因為原理不同,工作效率不同,所以兩者之間的價格也是有很大差異的。所以消費者在購買時,也要考慮到價格的因素。
四、使用壽命
鋼管自動打包機的使用壽命比普通的打包機使用壽命要長,因為它在工作的時候,不需要過多的操作,因此出現故障的幾率也比較小。鋼管自動打包機可以實現自動打包,它的功用是使塑料帶能緊貼于被捆扎的包件表面,保證包件在運輸、貯存中不因捆扎不牢而散落,同時還應捆扎整齊美觀。鋼管自動打包機現在之所以能夠被廣泛的使用,不僅是由于使用方便,更是因為它的結構設計非常突出,能夠吸引更多的人使用。

一般來說,它的結構特點主要包括四個方面,一起了解一下:
1、瞬間加熱,立即打包:創新高速熱熱熔系統設計,5秒種內可使打熱片工作,使PET打包機進入打包狀態。
2、集成電路設計:新型電路設計,采用插入式電路板控制整個打包動作和燙頭溫度,電路板更換相當方便,打包機服務便捷。
3、自動停機裝置,省電實用:當捆包動作完成,60秒內不再操作時,打包機結構設計緊湊,馬達會自動停止,進入待機狀態。
4、新型剎車設計:捆扎機使用帶盤剎車,采用特殊的彈簧設計,保證進帶平穩無噪音。
以上就是關于鋼管自動打包機的內容介紹,希望對您有幫助,如果您還想要了解更多相關內容,請繼續瀏覽鋼管生產技術。有什么問題還可以給我留言哦。

鋼管鋼帶打包機機頭部位


最后我們來看一個視頻: 【一種全自動鋼管打包機全自動鋼管碼垛自動打包生產現場】
(本平臺"常州精密鋼管博客網"的部分圖文來自網絡轉載,轉載目的在于傳遞更多技術信息。我們尊重原創,版權歸原作者所有,若未能找到作者和出處望請諒解,敬請聯系主編微信號:steel_tube,進行刪除或付稿費,多謝!)

